Sie haben den Traum vom Eigenheim? Lassen Sie sich gerne von meinen bisherigen Projekten inspirieren. Sie haben andere, individuelle Vorstellungen? Gemeinsam entwerfen wir Ihr Traumhaus.
Einfamilienhaus bei Bordesholm
Steckbrief:
Projekt: Neubau eines Einfamilienhauses in der Nähe von Bordesholm
Projektbeginn: voraussichtlich 1. Jahreshälfte 2024
Projektende: voraussichtlich 1. Jahreshälfte 2025
Zimmer: 5 Zimmer mit Abstellräumen über der Garage
Beschreibung: Wohnhaus mit Garage in amerikanischem Stil
Ökobilanz: Niedrigenergiehaus mit Geothermie




Einfamilienhaus in Rendsburg
Steckbrief:
Projekt: Neubau eines unterkellerten Einfamilienhauses in Rendsburg
Projektbeginn: Herbst 2022
Projektende: Herbst 2023
Beschreibung: gediegenes, zeitloses Einfamilienhaus mit Keller und ausgebautem Dachgeschoss
Zimmer / Quadratmeter: ca. 182 m², 6 Zimmer
Ökobilanz / Isolierung etc.: Kfw 40 E
Wohnhaus in Bovenau
Steckbrief:
Projekt: Bau eines Einfamilienhauses für Senioren (mit vorgesehenem Aufstellplatz für einen Aufzug)
Projektbeginn: März 2015
Projektende: Ende 2015
Beschreibung: offenes Massivhaus mit viel Fensterfläche und Galerie
Zimmer / Quadratmeter: 155,3 m2
Ökobilanz / Isolierung etc.: Kfw 55 Haus







Wohnhaus in Schinkel
Steckbrief:
Projekt: Bau eines Einfamilienhauses für zwei Erwachsene und drei Kinder
Projektbeginn: März 2013
Projektende: Ende 2013
Beschreibung: Massivhaus mit Lüftungsanlage und Kaminofen mit Wassertasche
Zimmer / Quadratmeter: 9 Zimmer, 185,4 m2
Ökobilanz/Isolierung etc.: Kfw 70 Haus



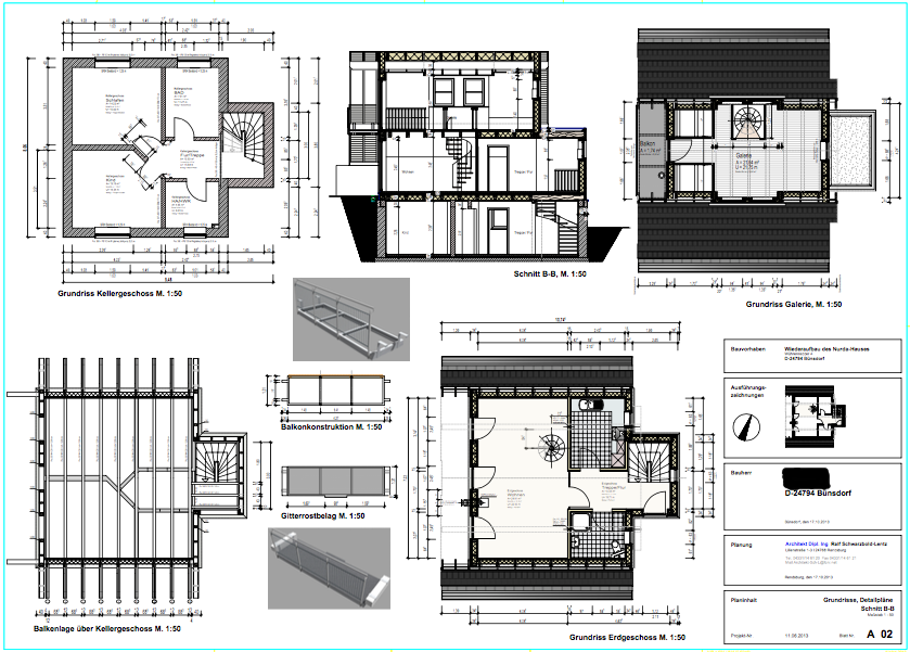
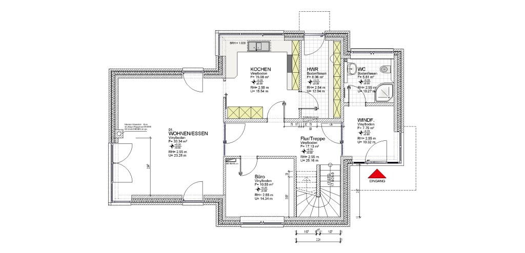
Bauvorhaben Nur-Dach-Haus
Steckbrief:
Projekt: Wiederaufbau eines abgebrannten Einfamilienhauses als Nurdachhaus
Projektbeginn: März 2014
Projektende: August 2014
Beschreibung: Nurdachhaus ausgeführt als Holzständerwerk auf massivem Kellermauerwerk
Zimmer / Quadratmeter: 5 Zimmer, 128 m2















