Sie benötigen mehr Platz? Kein Problem. Es gibt viele Möglichkeiten, ein Haus so umzugestalten, dass es den nötigen (Frei)räum bietet.
Entwurf: Anbau einer Wohneinheit an ein Wohnhaus
Steckbrief:
Projekt: Anbau an ein Wohnhaus
Beschreibung: Holzständerwerkbau mit Anbindung an das Keller-, Erd- und Dachgeschoss
Zimmer / Quadratmeter: Anbau 3 Zimmer
Ökobilanz/Isolierung etc.: Kfw 70 Anbau






Entwurf: Anbaus einer Wohneinheit an ein Einfamilienhaus
Steckbrief:
Projekt: Studie eines Anbaus an ein Einfamilienhaus
Beschreibung: Holzständerwerkbau mit Anbindung an das Keller-, Erd- und Dachgeschoss
Zimmer / Quadratmeter: Anbau: 3 Zimmer
Ökobilanz/Isolierung etc.: Kfw 70 Anbau

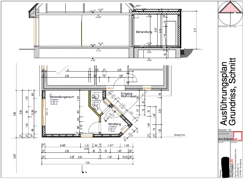
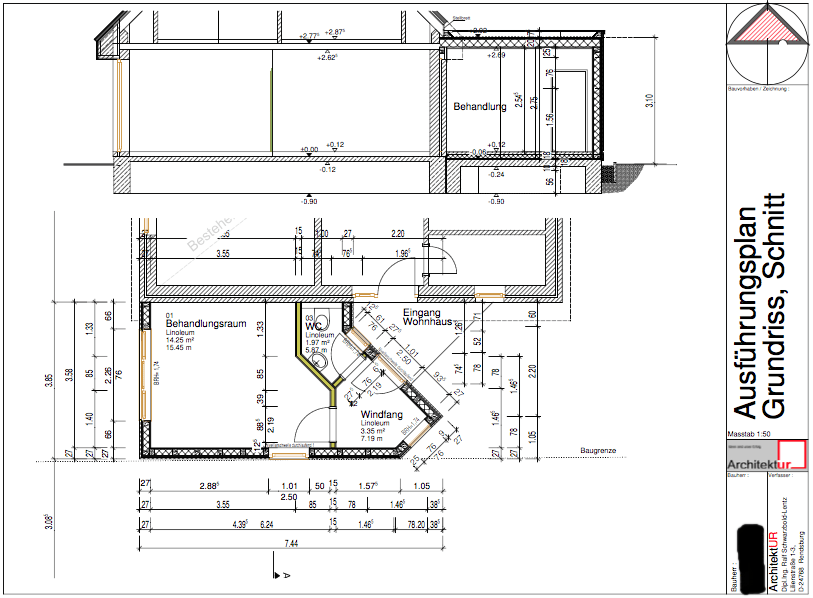
Anbau an ein Einfamilienhaus
Steckbrief:
Projekt: Anbau eines Praxisraumes für Naturheilkunde
Projektbeginn: März 2011
Projektende: Juni 2011
Beschreibung: Gedämmtes Holzständerwerk mit Flachdach und Kunststofffenstern
Zimmer / Quadratmeter: 1 Zimmer, 19,5 m2



